Este fideicomiso está ubicado en una zona estratégica que combina la tranquilidad del entorno con un acceso ágil y directo a la Avenida 12 de Octubre, la cual conecta fácilmente con el ingreso a San Carlos de Bariloche.
Su proximidad a la Terminal de Ómnibus, la Estación de Trenes y el Aeropuerto lo posiciona como una opción ideal para quienes buscan comodidad en la conectividad. Además, permite un fácil acceso tanto a los barrios del este como al centro de la ciudad y las orillas del Lago Nahuel Huapi.
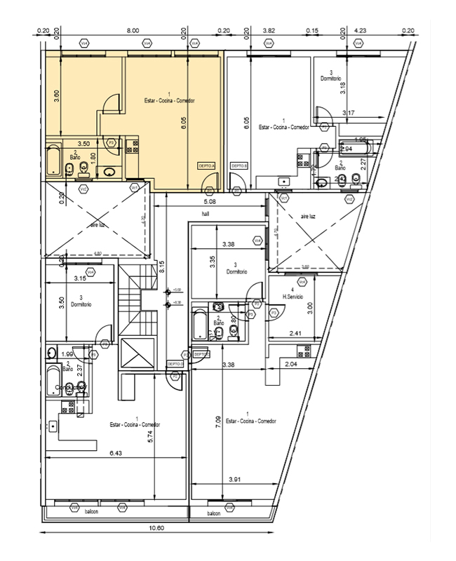
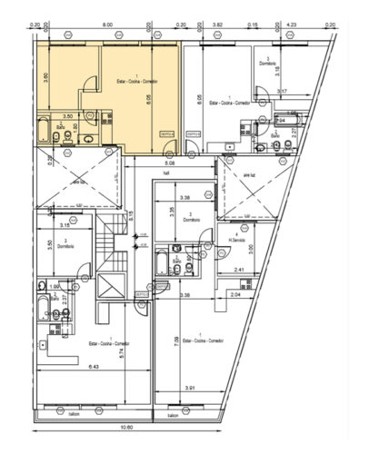
El edificio cuenta con departamentos de 2 y 3 ambientes, algunos con vista al lago y otros con terraza, distribuidos en 5 plantas.
Adicionalmente, dispone de cocheras, un valor agregado que realza su atractivo y funcionalidad.
Es una opción ideal para quienes desean disfrutar de un entorno tranquilo sin renunciar a la comodidad de acceder rápidamente a las principales arterias de la ciudad.