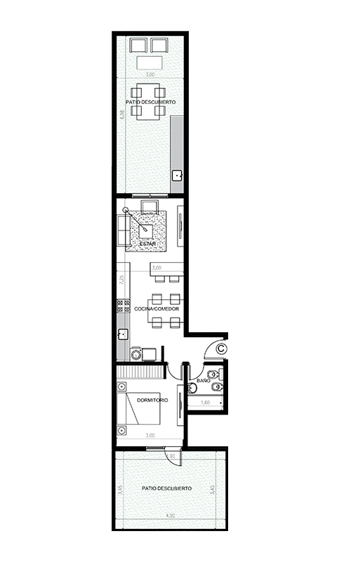
Ambientes
2
Dormitorios
1
Baños
1
Pisos
1

Otto Goedecke | PBC

Bariloche | Centro | Otto Goedecke 250

Esta unidad pertenece a Fideicomiso Otto Goedecke
Financiamiento
Valor: USD 156.765
Anticipo: USD 39.192
48 cuotas de USD 2.449

El proyecto está ubicado en una zona privilegiada, a solo 100 metros de la calle principal, lo que facilita el acceso a una amplia variedad de comercios, restaurantes y servicios locales. Las unidades frontales del edificio ofrecen espectaculares vistas al lago Nahuel Huapi, brindando un entorno único que combina atractivo visual y serenidad.

El complejo cuenta con 39 departamentos de uno y dos ambientes, diseñados para ofrecer diversas comodidades que se ajustan a las necesidades y preferencias de los inversores, ofreciendo múltiples opciones según sus intereses.

Los departamentos están distribuidos en dos bloques separados por un patio común, lo que garantiza una excelente iluminación natural en todas las unidades y fomenta una mayor privacidad entre ellas.

Disposición
Contrafrente
Orientación
Oeste
SUP. Cubierta
43.50 m²
SUP. Descubierta
41.50 m²
SUP. Total
85.00 m²
Servicios:
Agua Corriente
Cloaca
Electricidad
Pavimento
Ambientes:
Living comedor
Patio

Depto

Ubicación: Otto Goedecke 250

Propiedades
Promoción