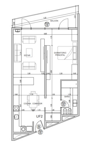
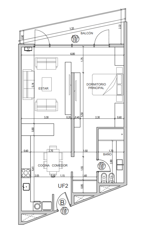
Ambientes
3
Dormitorios
1
Baños
1
Pisos
1

Lago Suites | Unidad 2

Bariloche | Centro | Juan Manuel de Rosas 435

Esta unidad pertenece a Lago Suites
Financiamiento
Valor: USD 250.000
Anticipo: USD 120.000
20 cuotas de USD 6.500

El proyecto está ubicado en el centro de la ciudad, sobre la calle Juan Manuel de Rosas, con una vista directa al majestuoso lago Nahuel Huapi, lo que lo convierte en una excelente oportunidad de inversión para el uso turístico.

La edificación destaca por el uso de materiales de alta calidad. Al ingresar, nos recibe un amplio y elegante hall de entrada, que conecta con los departamentos. Estas unidades, de 2 y 3 ambientes, ofrecen superficies generosas y acabados de primera categoría en cada uno de sus espacios, diseñados para maximizar la comodidad y funcionalidad.

En resumen, este proyecto representa una oportunidad única para quienes desean invertir en una propiedad de alta calidad en una de las ciudades más hermosas de Argentina. Con vistas espectaculares, departamentos amplios y cómodos, y una ubicación estratégica, es una inversión segura y rentable, ideal para aquellos que buscan un balance entre calidad de vida y retorno financiero.

Disposición
Frente
Orientación
Norte
SUP. Cubierta
68.50 m²
SUP. Descubierta
11.50 m²
SUP. Total
80.00 m²
Servicios:
Agua Corriente
Cloaca
Electricidad
Pavimento
Ambientes:
Balcón
Cocina
Living comedor

Depto

Ubicación: Juan Manuel de Rosas 435

Propiedades
Promoción