Ambientes
monoambiente
Baños
1
Pisos
1

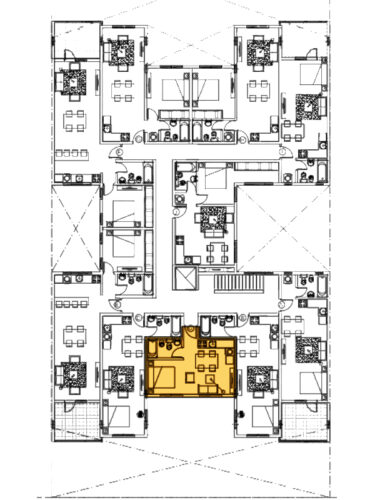
Elordi 343 | 2C

Bariloche | Centro | Elordi 343

Esta unidad pertenece a Fideicomiso Elordi 343
Financiamiento
Valor: USD 60.000
Anticipo: USD 20.400
36 cuotas de USD 1.100

El edificio está ubicado en una zona altamente comercial, sobre la calle Elordi 343, a tan solo dos cuadras de la arteria principal de la ciudad. Esta ubicación estratégica garantiza a los residentes un acceso sencillo a comercios, centros de entretenimiento, transporte público y otros servicios esenciales.

La construcción consta de cuatro pisos y destaca por su diseño moderno y funcional. En la planta baja, se encuentran dos locales comerciales que contribuyen a la vitalidad del entorno y ofrecen una excelente oportunidad para establecer negocios locales.

Los pisos superiores albergan un total de 39 amplios departamentos, diseñados para satisfacer una variedad de necesidades y preferencias. La oferta incluye desde unidades más compactas hasta espacios más grandes, ideales para familias. Cada departamento se distingue por la calidad de sus terminaciones y el cuidado en los detalles.

El edificio ha sido construido utilizando materiales de primera calidad y las técnicas más avanzadas del sector. Los departamentos cuentan con acabados de lujo y un diseño de interiores cuidadosamente seleccionado, pensado para ofrecer confort y estilo.

Este proyecto en la calle Elordi es una propuesta residencial única en San Carlos de Bariloche. Su ubicación privilegiada, diseño contemporáneo, alta calidad en las terminaciones y enfoque en las necesidades de los residentes lo convierten en un hogar ideal para quienes buscan vivir en un entorno exclusivo. Este desarrollo es un reflejo del compromiso con la excelencia en la construcción y la satisfacción de sus futuros habitantes.

Disposición
Frente
Orientación
Este
SUP. Cubierta
28.00 m²
SUP. Total
28.00 m²
Servicios:
Agua Corriente
Cloaca
Electricidad
Pavimento
Ambientes:
Living comedor

Depto

Ubicación: Elordi 343

Propiedades
Promoción