Ambientes
monoambiente
Baños
1
Pisos
1

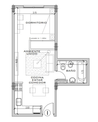
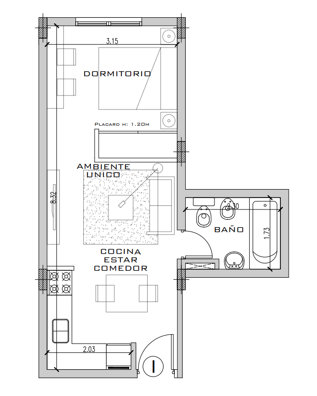
Albarracín 1454 | 2I

Bariloche | Anasagasti | Albarracín 1454

Esta unidad pertenece a Fideicomiso Albarracín 1454
Financiamiento
Valor: USD 64.350
Anticipo: USD 16.088
48 cuotas de USD 1.005

Moderno edificio céntrico que cuenta con 61 unidades habitacionales, de uno y dos ambientes, con balcón o acceso a terraza. Además, 40 cocheras, dos locales comerciales y ascensor. Todo ello, distribuido en un subsuelo, tres plantas y entretecho.

Su ubicación dista pocas cuadras del centro de la ciudad, ofreciendo tranquilidad propia de una zona residencial junto a la comodidad por cercanía a prestaciones urbanas. Este desarrollo posee calefacción por radiadores, cloaca y acceso a todos los servicios.

Para esta obra se utiliza el método de construcción tradicional, empleando materiales de calidad premium, al igual que en cada proyecto nuestro.
GMD, inversión segura garantizada.

Disposición
Contrafrente
Orientación
Norte
SUP. Cubierta
33.00 m²
SUP. Total
33.00 m²
Servicios:
Agua Corriente
Cloaca
Electricidad
Pavimento
Ambientes:
Living comedor

Depto

Ubicación: Albarracín 1454

Propiedades
Promoción